Walle | Schöne, modernisierte Doppelhaushälfte in ruhiger Seitenstraße!
-
Willkommen in einer Immobilie, die Vergangenheit und Gegenwart auf besondere Weise verbindet: Diese 1962 erbaute Doppelhaushälfte wurde zwischen 2020 und 2024 umfassend modernisiert und präsentiert sich heute in einem Top-Zustand, der keine Wünsche offenlässt.
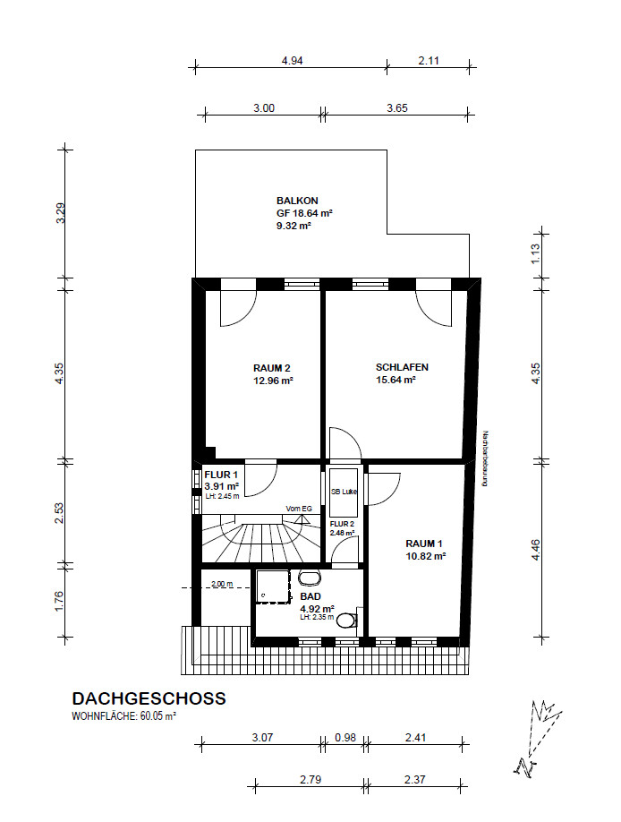
Auf rund 111 m² Wohnfläche entfaltet sich ein durchdachtes Raumkonzept mit vier hellen Zimmern, das sowohl Familien als auch Paaren viel Platz für individuelle Wohnideen bietet. Große Fensterflächen sorgen für lichtdurchflutete Räume, während der Kaminofen mit Speckstein an kühlen Tagen für wohlige Wärme und eine gemütliche Atmosphäre sorgt.
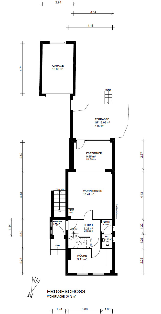
Das Herzstück des Hauses bildet der offene Wohn- und Essbereich nebst separater Küche mit hochwertiger Häcker-Einbauküche inkl. nahtlos integrierten Bosch-Elektrogeräten – perfekt für alle, die Genuss und Geselligkeit lieben. Komfortable Details wie das Gäste-WC und das moderne Badezimmer mit Fußbodenerwärmung runden den Wohnkomfort ab.
Die sorgfältigen Modernisierungen der letzten Jahre lassen keine Zweifel an der Qualität dieser Immobilie: Von der neuen Gas-Heizung über Elektrik und EDV-Verkabelung, hochwertige Bodenbeläge, zweifach verglaste Schallschutzfenster mit Rollläden bis hin zur Dachsanierung mit Veluxfenstern und einer stilvoll neugestalteten Terrasse – jedes Detail wurde mit Blick auf Langlebigkeit und Wohnqualität umgesetzt.
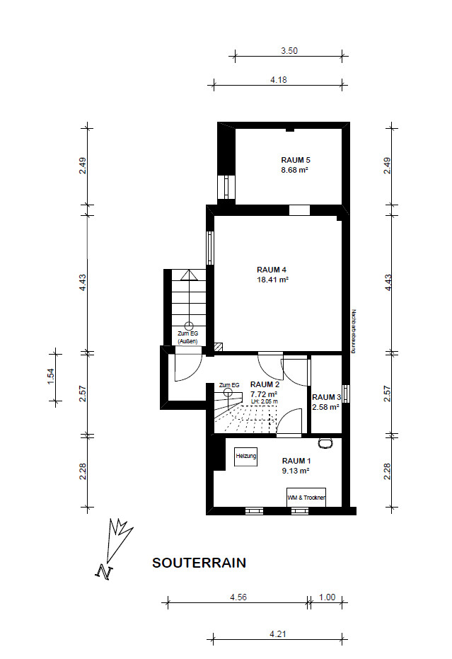
Der Südgarten eröffnet Ihnen sonnige Stunden im Freien, sei es beim Frühstück auf der Terrasse, beim Spielen mit den Kindern oder beim Entspannen nach einem langen Tag. Eine Garage, der großzügige Vollkeller mit separaten Wasch- und Getränkeraum sowie die frisch gestaltete Einfahrt unterstreichen den praktischen Nutzen dieses Angebots.
Diese Doppelhaushälfte ist mehr als ein Haus – sie ist ein Zuhause. Ein Ort, an dem Sie sofort ankommen, die hochwertigen Ausstattungen genießen und die vielen liebevollen Details schätzen werden.
**Der Wert des Energiebedarfs wird zur Besichtigung nachgereicht!** -
Flächen
- Wohnfläche: 110,77 m²
- Grundstücksfläche: 350 m²
- Nutzfläche: 60,4 m²
- Zimmer insgesamt: 4
- Schlafzimmer: 3
- Badezimmer: 1
- Separate WCs: 1
- Etagen: 3
- Stellplätze: 1
- Garagenstellplätze: 1
- Balkone: 1
- Terrassen: 1
Zustand & Erschließung
- Baujahr: 1962
- Zustand: modernisiert
- Keller: voll unterkellert
Sonstiges
geo select Immobilien hat sich auf die Vermarktung von Häusern, Wohnungen und Grundstücken spezialisiert.
Durch eine fundierte Ausbildung unserer Mitarbeiter können wir Ihnen eine umfassende Beratung in allen Fragen rund um die Immobilie geben.
Vorab bewertet unser Dipl. Sachverständiger Ihre Immobilie kostenlos für Sie. Sprechen Sie uns gerne an.
Für die im Exposé gemachten Angaben übernehmen wir keine Gewähr. Die gemachten Angaben basieren ausschließlich auf Informationen unseres Auftraggebers. Somit übernehmen wir keine Haftung oder Gewähr für die Vollständigkeit, Richtigkeit und Aktualität dieser Angaben. Nachträgliche Änderungen und Korrekturen im Exposé behalten wir uns vor. Irrtum und Zwischenverkauf bleibt vorbehalten. Gerne erhalten Sie von uns weitere Informationen zum Objekt und dem Eigentümer.- Immobilie ist verfügbar ab: 01.02.2026
-
+ Modernisierte Doppelhaushälfte in top Zustand
+ Erstmals erbaut 1962
+ zwischen 2020 und 2024 modernisiert
+ ca. 111 m² Wohnfläche
+ 4 Zimmer
+ Südgarten
+ Gäste-WC
+ Badezimmer mit Fußbodenerwärmung
+ Modernisierungen:
– Neue Gas-Heizung inkl. neue Fallrohre und Abgasleitung (2020)
– Neue Bäder (2020)
– Kaminofen mit Speckstein 5 kw (2020)
– Neue Elektrik inkl. EDV Verkabelung (2020)
– Neue Einbauküche Marke Häcker inkl. Bosch E-Geräte (2020)
– Neue Bodenbeläge inkl. Dämmunterlage (2020)
– Rollputz feinkörnig am gesamten Haus (2020)
– Dachsanierung inkl. Dämmung und neuen Veluxfenstern (2022)
– Balkonsanierung (2022)
– Neue Kunststofffenster, 2-fach Verglasung mit übwiegend Schallschutz für 37 dB (2022)
– Außenrollläden (2022)
– Neugestaltung der Einfahrt inkl. Eingangsbereich (2023)
– Neue Terrasse (2023)
– neue Dachüberstände (2023)
– Innendämmung der Kinderzimmer sowie im Elternschlafzimmer balkonseitig (2024)
+ Vollkeller inkl. Wasch- und Getränkeräumen
+ Garage
+ uvm.- Heizungsart: Zentralheizung
- Befeuerung: Gas
-
- Energieausweis-Art: Bedarf
- Energieausweis gültig bis: 06.10.2035
- Endenergiebedarf: 173,46 kWh/(m²*a)
- Primärenergieträger: Gas
- Baujahr (Energieausweis): 1962
- Energieausweis-Jahrgang: ab Mai 2014
- Energieausweis-Gebäudeart: Wohngebäude
-
Der Stadtteil Bremen-Walle verbindet urbanes Leben mit grüner Gelassenheit und zählt zu den gefragten Wohnlagen Bremens. Die Immobilie liegt in unmittelbarer Nähe des traditionsreichen Waller Friedhofs, einer weitläufigen Parkanlage, die mit alten Baumalleen, stillen Wegen und gepflegten Grünflächen eine grüne Oase im Alltag bietet.
Walle überzeugt durch seine hervorragende Infrastruktur: Einkaufsmöglichkeiten, Wochenmärkte, Restaurants und Cafés sind bequem erreichbar. Kindergärten, Schulen und medizinische Einrichtungen befinden sich ebenfalls in der Nähe – ideal für Familien.
Für Freizeit und Erholung bietet die Umgebung zahlreiche Möglichkeiten. Ob ein Besuch in der Eissporthalle Paradice, entspannte Stunden im beliebten Waller Schwimmbad oder Spaziergänge im Waller Park mit dem idyllischen Waller See – hier findet jeder sein persönliches Highlight. Naturliebhaber erreichen zudem in wenigen Minuten das einzigartige Blockland, Bremens grüne Lunge mit weiten Wiesen, Deichen und Radwegen entlang der Wümme.
Dank der sehr guten Anbindung an den öffentlichen Nahverkehr gelangen Sie in nur wenigen Minuten in die Bremer Innenstadt. Auch die Autobahnen A27 und A281 sowie die Bundesstraßen B6/B75 sind schnell erreichbar und bieten eine direkte Verbindung in die Region. Gleichzeitig punktet der Stadtteil mit seinem lebendigen Charakter, gewachsenen Nachbarschaften und einer spannenden Mischung aus Tradition und Moderne.
Die Nähe zu Kulturangeboten – etwa der Kulturwerkstadt Bremer Westend – sowie die kurzen Wege zum Bremer Westen mit Park, See, Schwimmbad und Überseehafengebiet unterstreichen die Vielseitigkeit dieser Lage.
Fazit: Eine Wohnlage, die urbanes Flair, hervorragende Erreichbarkeit und grüne Rückzugsorte harmonisch vereint – ideal für alle, die die Vorzüge der Stadt genießen und zugleich ein ruhiges Zuhause suchen.
-
- Kaufpreis: 399.000 €
- Käuferprovision: 3,57 % inkl. MwSt.
Grundrisse
Dein Kontakt bei uns
- E-Mail: tc@hre-bremen.de
- Telefon: 00491706687847
- Mobil: 00491706687847
- Weitere Informationen: www.geo-immo.de
- E-Mail (Zentrale): info@geo-immo.de
- Telefon (Zentrale): 004942138872470

![18[1]](https://geo-immo.de/wp-content/uploads/2025/12/20576ac7-cc8a-43a9-9479-06743e9fffc0-120x68.jpg)































